


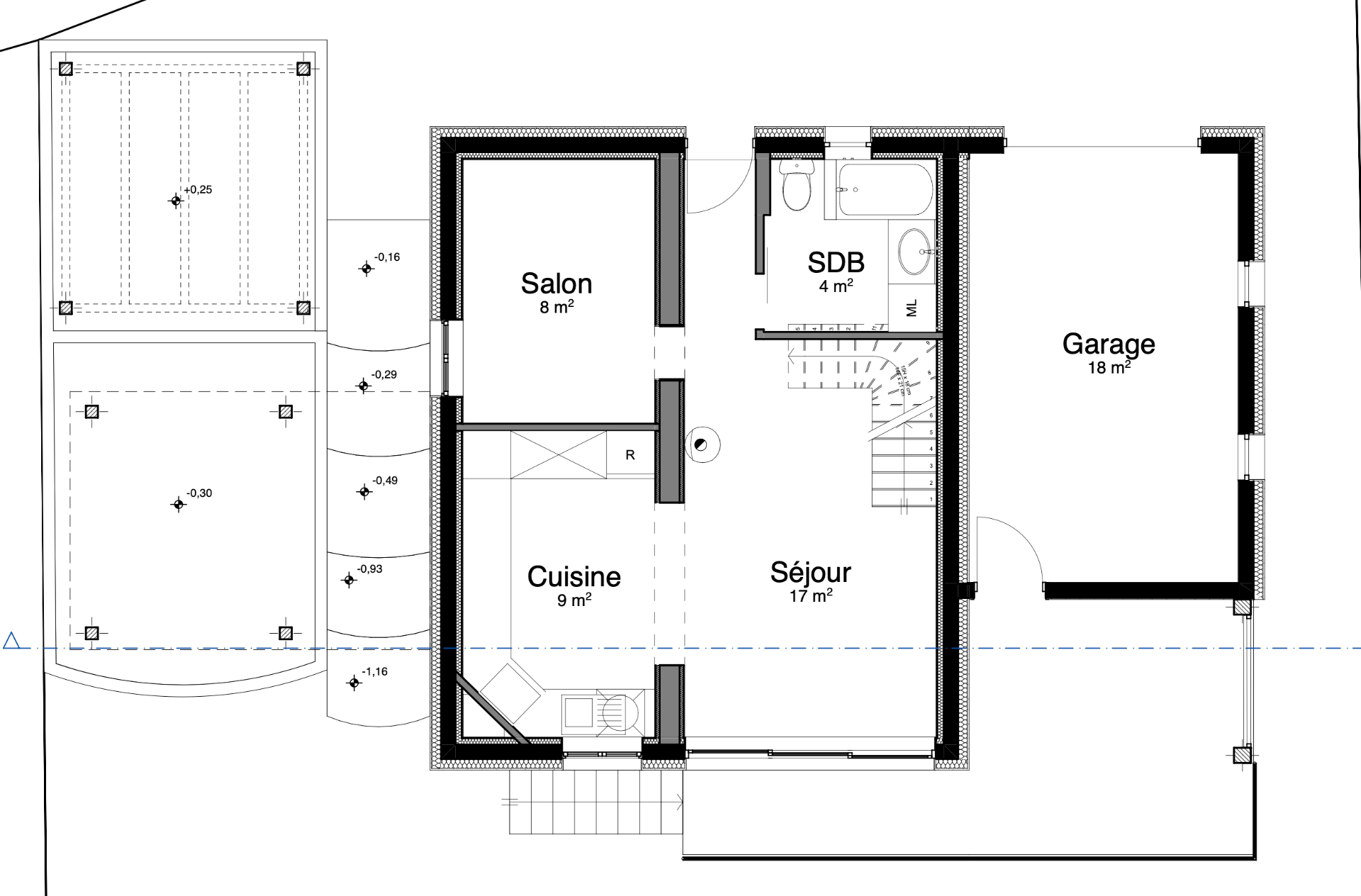
Pour les propriétaires de cette villa individuelle à Lumbin, le salon existant est trop petit, la cuisine trop grande et la salle de bain de cet étage est utilisée comme buanderie / entrée. Le projet vise donc à améliorer l'utilisation et le confort des espaces existants de l'étage en supprimant la salle de bain afin de créer une véritable entrée, de fluidifier la circulation tout en apportant de la lumière naturelle. De nombreuses ouvertures intérieures et extérieures sont ainsi crées et les espaces repensés de manière à améliorer le confort visuel et ressenti.
Vous recherchez des exemples concrets ? Retrouvez ci-dessous mes dernières réalisations !